ID CP2866588

Casa Miroslava-Uricani - 4 camere 3 BAI - constructie regim propriu - TVA inclus

ID CP2866588

240,000 € (negociabil)

Casă / Vilă cu 4 camere de vânzare
Miroslava, Iasi
210 mp
2024

🏡 Casă Premium Individuală – Uricani (Miroslava)

📍 Ideală pentru familie | Construcție solidă | Materiale de top

Se oferă spre vânzare casă individuală P+1+Pod, construită inițial pentru uz propriu, nu pentru vânzare – un detaliu care se vede și se simte în fiecare colț.

Proprietatea este amplasată pe un teren plan de 600 mp, într-o zonă excelentă pentru familii, cu școală, grădiniță și parc de joacă chiar lângă casă.

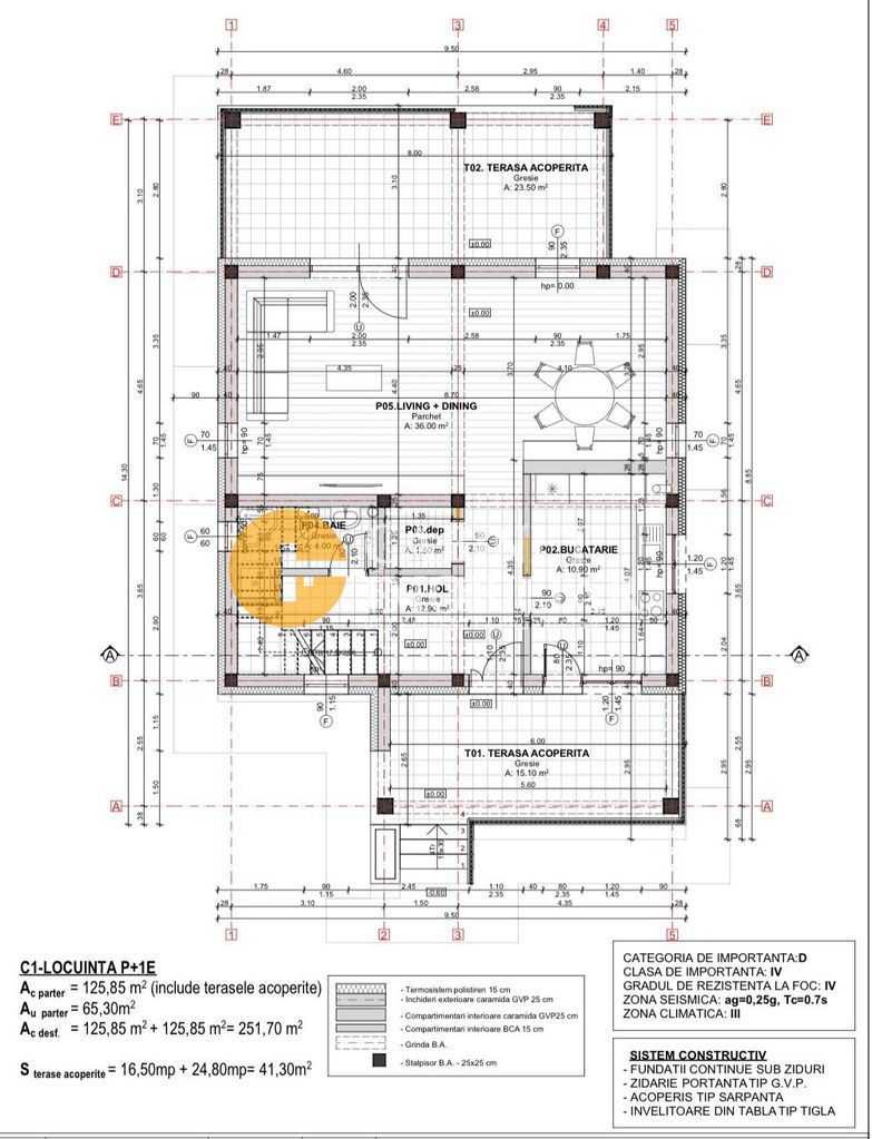
📐 Suprafețe

Suprafață construită: 250 mp

Suprafață utilă totală: 210 mp

128 mp interior

82 mp terase (2 la parter + 2 la etaj, toate acoperite)

🛋️ Compartimentare:

-Parter

Living foarte spațios, cu 2 ieșiri către terasa din spate și grădină

Bucătărie separată, cu ieșire pe terasa din față

Hol generos

Cameră tehnică / depozitare

Baie de serviciu cu spațiu pentru mașină de spălat

2 terase acoperite din beton: 17 mp (față) și 24 mp (spate)

-Etaj

Hol spațios

3 dormitoare, fiecare cu acces pe terasă

2 băi

Dormitor matrimonial cu:

baie proprie (duș walk-in)

dressing mare cu geam

-Terase:

24 mp (spate)

17 mp (față)

Balustrade din sticlă securizată laminată fumurie – 10 mm

Pod

Acces pe scară

Înălțime: 2,2 m

Placă de beton între etaj și pod, izolată fonic și termic cu vată bazaltică

Posibilitate amenajare 2 camere suplimentare

Urmează a fi izolat cu spumă poliuretanică

🔥 Dotări & finisaje premium

Încălzire în pardoseală Uponor, pe ambele niveluri

Calorifere port-prosop în băi

Centrală Viessmann Vitodens în condensare, cu Wi-Fi

Sistem smart Salus – control individual pe 8 zone, termostate în fiecare cameră, control de pe telefon

Instalație electrică Schneider

Tâmplărie Salamander tripan, interior–exterior în două culori, geamuri opace

Parchet SPC la etaj (compatibil încălzire în pardoseală)

Gresie și finisaje atent alese

Glafuri din marmură la interior și granit la exterior

Trepte și balustrade din lemn masiv de fag

🚿 Băi complet echipate

3 băi hidroizolate integral + bandă de etanșare

Cadă freestanding

Dușuri walk-in

WC-uri suspendate Roca cu rezervor încastrat

Duș intim

Benzi LED încastrate în tencuială

🧱 Exterior & structură

Fundație adâncă, izolată cu XPS + hidroizolație

Cărămidă portantă Brikston

Termosistem EPS 80 grafitat, ignifugat – 10 cm, montat pe chenare

Terase hidroizolate integral

Gard tip jaluzele orizontale, fundație și stâlpi din beton

Poartă automatizată cu telecomandă + aplicație mobilă

Alei și trotuare betonate și pavate (pavele combi – 3 dimensiuni)

Rigole pluviale pe toată proprietatea

Racorduri complete: apă, gaz, canalizare, electricitate, fibră optică

✅ Avantaje cheie

Teren drept, plan

Toate etapele construcției documentate (peste 1200 poze și filmări)

Casă solidă, eficientă energetic

Pregătită pentru mutare imediată

💰 Preț: 240.000 € (TVA inclus) - se accepta orice modalitate de plata

📞 Pentru detalii sau vizionare, această casă merită văzută pe viu – calitatea se simte de la primul pas.

Citește mai mult

  • Număr camere
    4
  • Dormitoare
    3
  • Număr bucătării
    1
  • Număr băi
    3
  • Geam la baie
    Da
  • Număr balcoane
    1
  • Număr terase
    2
  • Disponibilitate
    Imediat
  • Tip casă
    Individual
  • Suprafață utilă
    210 mp
  • Suprafață construită
    250 mp
  • Suprafață teren
    600 mp
  • An construcție
    2024
  • Construcție nouă
    Da
  • Număr etaje clădire
    1

Facilități

Apă
Canalizare
CATV
Curent
Gaz
Iluminat stradal
Internet
Mijloace de transport în comun
Străzi asfaltate
Telefon
Emanuel Manican - Cabinet Imobiliar
Emanuel Manican
Consilier imobiliar

0749316940


Solicită chiar acum o vizionare
Telefon
Sună acum Solicită vizionare
Necesare:

Site-ul nu poate funcționa corect fără aceste cookie-uri. Vezi cookie-urile

Statistică:

Strângem statistici anonime despre voi, vizitatorii unici, pentru a vă îmbunătăți experiența dumneavoastră. Vezi cookie-urile

Marketing:

Pentru a ne promova mai eficient serviciile noastre, folosim cookies pentru a vă identifica și a vă oferi proprietăți și servicii personalizate. Vezi cookie-urile

Acest site folosește cookies, află detalii. Alege ce tipuri de cookies dorești să permitem: