ID CP2530895

Garsoniera dubla | Universitate | Necesita Renovare

Această proprietate nu mai este activă,
te invităm să vizualizezi proprietăți similare

ID CP2530895

67,000 € (negociabil)

Apartament cu 1 camere de vânzare
Universitate, Bucuresti
32 mp
1938

Cabinet Imobiliar Bucharest va prezinta spre vanzare o garsoniera dubla, cu balcon, situata in apropiere de Universitate

Detalii tehnice garsoniera

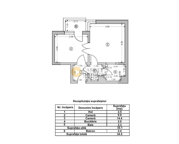
-Suprafata totala: 34 mp

-Etaj 7/8

-Tavan inalt

-Balcon deschis

-Vedere panoramica

-Necesita renovare

-Pretabil pentru AIRBNB

Detalii tehnice imobil :

-An constructie: 1938

-R2

-Centrala termica a blocului

-Lift

Vizionarea se face doar pe baza semnării unui contract de vizionare, în conformitate cu dispozițiile Codului Civil (art. 1169) privind libertatea contractuală

Pentru mai multe detalii sau pentru a programa o vizionare, va rugam sa contactati Cabinet Imobiliar Bucharest.

Citește mai mult

  • Tip apartament
    Garsonieră
  • Număr camere
    1
  • Număr bucătării
    1
  • Număr băi
    1
  • Geam la baie
    Da
  • Etaj
    7
  • Suprafață utilă
    32 mp
  • Suprafață totală
    34 mp
  • Disponibilitate
    Imediat
  • Confort
    1
  • Stare interior
    Necesită renovare
  • Număr balcoane
    1
  • Imobil
    Bloc de apart.
  • Stadiu construcție
    Finalizată
  • An construcție
    1938
  • Tip construcție
    Beton
  • Risc seismic
    Risc II
  • Număr etaje clădire
    8

Facilități

Acoperiș
Apă
Apometre
Bucătărie închisă
Cadă
Calorifere
Canalizare
CATV
Centrală imobil
Contor căldură
Contor electric
Contor gaz
Curent
Faianță
Ferestre care se deschid
Ferestre lemn
Gaz
Gresie
Iluminat stradal
Interfon
Internet
Lift
Mijloace de transport în comun
Nemobilat
Parchet
Străzi asfaltate
Telefon
Ușă intrare metal
Uși interior lemn
Var
Vedere spre oraș
Vopsea lavabilă
Necesare:

Site-ul nu poate funcționa corect fără aceste cookie-uri. Vezi cookie-urile

Statistică:

Strângem statistici anonime despre voi, vizitatorii unici, pentru a vă îmbunătăți experiența dumneavoastră. Vezi cookie-urile

Marketing:

Pentru a ne promova mai eficient serviciile noastre, folosim cookies pentru a vă identifica și a vă oferi proprietăți și servicii personalizate. Vezi cookie-urile

Acest site folosește cookies, află detalii. Alege ce tipuri de cookies dorești să permitem: