ID CP2509537

2 Camere Decomandat | Bulevardul Unirii | 3 balcoane | 72mp total

ID CP2509537

206,900 €

Apartament cu 2 camere de vânzare
Unirii, Bucuresti
64 mp
1993

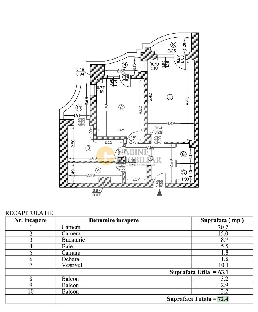
Vă prezentăm un apartament spațios cu 2 camere, complet decomandat, situat la etajul 6 al unui bloc cu 9 niveluri, construit în 1993 din beton. Cu o suprafață totala de 72 mp și trei balcone generose, această locuință oferă confort, funcționalitate și o priveliște panoramică asupra împrejurimilor.

Caracteristici principale:

Suprafață totala: 72 mp

Etaj: 6/9

Compartimentare: decomandat

Balcon: 1

An construcție: 1993

Tip construcție: cadre

Disponibilitate: imediată

Dotări și finisaje:

Aer condiționat, TV, internet wireless

Bucătărie deschisă, complet mobilată și utilată (aragaz, mașină de spălat)

Baie cu cadă, finisaje cu faianță, pardoseli din gresie și parchet

Ferestre termopan, uși interioare din lemn, ușă metalică la intrare

Utilități și facilități:

Apă, canalizare, curent, internet, CATV

Încălzire prin calorifere

Izolație exterioară, contorizare individuală (apometre, contor căldură și electric)

Lift funcțional, interfon

Avantaje:

Vedere panoramică

Apartament luminos, complet mobilat

Acces facil la mijloace de transport în comun, școli, magazine și alte puncte de interes

Străzi asfaltate și betonate, zonă bine urbanizată

Apartamentul este ideal pentru o familie sau un cuplu care caută un spațiu generos, bine întreținut și gata de locuit. Disponibil imediat, fără necesitatea unor investiții suplimentare.

Citește mai mult

  • Tip apartament
    Apartament
  • Compartimentare
    Decomandat
  • Număr camere
    2
  • Dormitoare
    1
  • Număr bucătării
    1
  • Etaj
    6
  • Suprafață utilă
    64 mp
  • Suprafață totală
    73 mp
  • Disponibilitate
    Imediat
  • Orientare
    Sud-Est
  • Confort
    1
  • Stare interior
    Finisat modern
  • Număr balcoane
    3
  • Imobil
    Bloc de apart.
  • Stadiu construcție
    Finalizată
  • An construcție
    1993
  • Tip construcție
    Cadre
  • Număr etaje clădire
    9

Facilități

Aer condiționat
Apă
Apometre
Aragaz
Bucătărie deschisă
Bucătărie mobilată
Cadă
Calorifere
Canalizare
CATV
Contor căldură
Contor electric
Curent
Faianță
Geamuri termopan
Gresie
Iluminat stradal
Interfon
Internet
Izolație exterioară
Lift
Mașină de spălat rufe
Mobilat complet
Parchet
Străzi asfaltate
Străzi betonate
TV
Ușă intrare metal
Uși interior lemn
Vedere panoramică
Wireless
Cabinet Imobiliar

0747 604 687


Solicită chiar acum o vizionare
Telefon
Sună acum Solicită vizionare
Necesare:

Site-ul nu poate funcționa corect fără aceste cookie-uri. Vezi cookie-urile

Statistică:

Strângem statistici anonime despre voi, vizitatorii unici, pentru a vă îmbunătăți experiența dumneavoastră. Vezi cookie-urile

Marketing:

Pentru a ne promova mai eficient serviciile noastre, folosim cookies pentru a vă identifica și a vă oferi proprietăți și servicii personalizate. Vezi cookie-urile

Acest site folosește cookies, află detalii. Alege ce tipuri de cookies dorești să permitem: