ID CP2525746

Apartament decomandat | Pretabil Locuinta sau Birou | Parter

Această proprietate nu mai este activă,
te invităm să vizualizezi proprietăți similare

ID CP2525746

95,000 € (negociabil)

Apartament cu 2 camere de vânzare
Universitate, Bucuresti
42 mp
1960

Cabinet Imobiliar Bucharest va prezinta: un apartament decomandat situat la Universitate – parter, complet gol, ideal pentru multiple destinatii.

Caracteristici generale:

• Locatie – in zona Universitate, accesibilitate excelenta

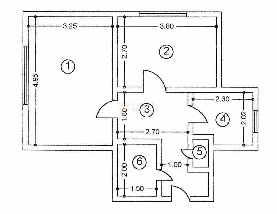
• Suprafata utila: 41,42 mp

• Compartimentare: 2 camere + dependinte

• Cota indiviza: 2,24% din partile si dependintele comune ale imobilului

• Cota parte de teren in folosinta aferenta apartamentului

• R2

• Complet renovat – finisaje moderne, materiale de calitate superioara

• Sistem de supraveghere dedicat si independent – securitate sporita

• Se vinde complet liber – fara chiriasi, disponibil imediat

Utilizari recomandate:

• Spatiu pentru birouri – ideal pentru activitati speciale, consultanta, cabinet boutique

• Locuinta personala – pentru cei care doresc sa locuiasca in centrul orasului

• Investitie versatila – poate fi adaptat pentru Airbnb, birou, galerie, cabinet etc.

Pentru detalii suplimentare sau programarea unei vizionari, te invitam sa contactezi Cabinet Imobiliar Bucharest.

Citește mai mult

  • Tip apartament
    Apartament
  • Compartimentare
    Decomandat
  • Număr camere
    2
  • Dormitoare
    1
  • Număr bucătării
    1
  • Număr băi
    1
  • Etaj
    Parter
  • Suprafață utilă
    42 mp
  • Disponibilitate
    Imediat
  • Confort
    1
  • Stare interior
    Renovat
  • Imobil
    Bloc de apart.
  • Stadiu construcție
    Finalizată
  • An construcție
    1960
  • Risc seismic
    Risc II
  • Număr etaje clădire
    10

Facilități

Aer condiționat
Apă
Apometre
Bucătărie închisă
Calorifere
Canalizare
CATV
Contor căldură
Contor electric
Contor gaz
Curent
Faianță
Geamuri termopan
Glet
Gresie
Iluminat stradal
Izolație interioară
Mijloace de transport în comun
Nemobilat
Parchet
Străzi asfaltate
Ușă intrare metal
Uși interior lemn
Var
Vopsea lavabilă
Necesare:

Site-ul nu poate funcționa corect fără aceste cookie-uri. Vezi cookie-urile

Statistică:

Strângem statistici anonime despre voi, vizitatorii unici, pentru a vă îmbunătăți experiența dumneavoastră. Vezi cookie-urile

Marketing:

Pentru a ne promova mai eficient serviciile noastre, folosim cookies pentru a vă identifica și a vă oferi proprietăți și servicii personalizate. Vezi cookie-urile

Acest site folosește cookies, află detalii. Alege ce tipuri de cookies dorești să permitem: